Plan 3 | New Homes for Sale in Davis, CA

Single Family Home

Est. Loading... /mo

$861,990

  • Square Footage

    1,972 sq ft

  • Bedrooms

    3 beds

  • Bathrooms

    3 baths

  • Number of Floors

    2 floors

  • Parking Bays

    2 bays

Harvest Glen
2355 E 8th St,
Davis, CA 95618

phone icon 925-520-3881
watch icon Sales Office Hours

Sales Office Hours

Monday 01:00 PM - 06:00 PM

Tuesday 10:00 AM - 06:00 PM

Wednesday 10:00 AM - 06:00 PM

Thursday 10:00 AM - 06:00 PM

Friday 10:00 AM - 06:00 PM

Saturday 10:00 AM - 06:00 PM

Sunday 10:00 AM - 06:00 PM

Overview

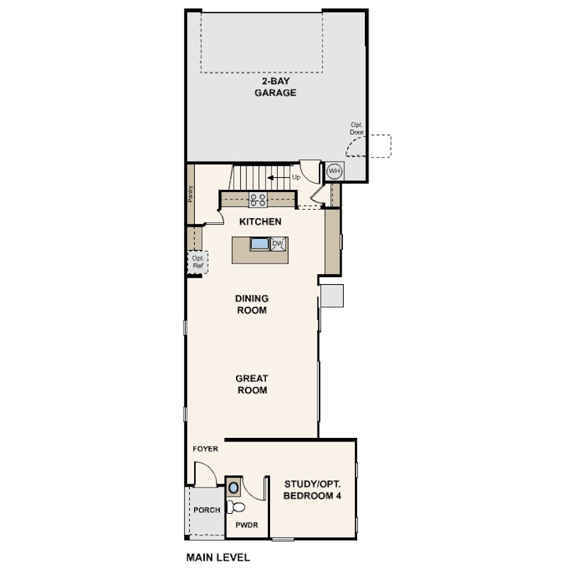
The Plan 3 floor plan at Harvest Glen offers two levels of thoughtfully designed living space. The main level features a welcoming porch and foyer that lead into an expansive great room and dining area, centered around a well-appointed kitchen with a large island and pantry. A study provides flexible space—perfect as a home office or optional fourth bedroom with a full bath. Upstairs, you’ll find three bedrooms, a conveniently located laundry room, and a full bath. The highlight of this level is the spacious primary suite, showcasing a large walk-in closet and a private bath with dual vanities and a walk-in shower.

Personalization options make this plan even more versatile, including an optional shower enclosure for the primary suite, or a garage apartment with a kitchenette, great room, and private bed and bath—ideal for multi-generational living or guests.

Interactive Floor Plan

Take a closer look at what this plan has to offer!

Available Homes

Buy online today!

Lock in your dream home through our convenient and completely online Buy Now process.

  • Now Selling
    COntact us TOday!

    1007 Vanderbilt Terrace | Lot 0016

    Est. Completion:
    May. Move In.
    Plan 3

    Single Family Home

    Est. Loading... /mo
    $944,095
    • Square Footage 1,972 sq-ft
    • Bedrooms 4 br
    • Bathrooms 3 ba
    • Parking Bays 2 bays
  • now sellling
    contact us today

    1107 Baylor Terrace | Lot 0034

    Est. Completion:
    Jun. Move In.
    Plan 3

    Single Family Home

    Est. Loading... /mo
    $966,125
    • Square Footage 1,972 sq-ft
    • Bedrooms 4 br
    • Bathrooms 3 ba
    • Parking Bays 2 bays

Explore homesites at this community!

Get a feel for the neighborhood and find the right homesite for you.

Community Information

Harvest Glen

Discover exceptional new build homes for sale in Davis, CA, at Harvest Glen! This beautiful community offers new single-family residences designed with your comfort and convenience in mind, and boasting open layouts, exciting features, stylish finishes, and two community gardens. Located just 15 miles from Sacramento, Harvest Glen provides an ideal location near popular dining, retail, and entertainment destinations. The weekly Davis Farmers’ Market is also a draw, presenting fresh produce and live music—plus, outdoor recreational opportunities are abundant. It’s the perfect place to call home sweet home!

Community Amenities

Outdoor & Nature: 

  • 2 Community Gardens
  • Near Local Vinyards
  • Near Parks and Recreation
  • Near UC Davis Public Garden 
  • Near Häagen-Dazs Honey Bee Haven 
  • Near California Raptor Center
  • Extensive Bike Paths 

 

Culture & Events:

  • Davis Farmers Market 
  • Performing Shows
  • Art Galleries
  • Art & Science Museums 

Schools

  • Birch Lane Elementary
  • Holmes Jr. High
  • Davis Senior High School
  • Da Vinci Charter Academy
  • UC Davis

Shopping and Dining

  • Target
    Davis, CA 95618
  • T.J. Maxx
    Davis, CA 95618
  • Fifth Street Plaza
    Davis, CA 95616
  • Safeway
    Davis, CA 95616
  • Nuggets Market
    Davis, CA 95616
  • Westlake Market
    Davis, CA 95616
  • Trader Joes
    Davis, CA 95616
  • Cafe Bernardo
    Davis, CA 96516
  • Burgers & Brew
    Davis, CA 95616
  • Local Kitchens
    Davis, CA 95616
  • Nick The Greek
    Davis, CA 95616
  • Crepville
    Davis, CA 95616
  • Dos Coyotes Border Cafe
    Davis, CA 95616
  • Wok of Flame
    Davis, CA 95618

Homeowner reviews

See for yourself what our Century Communities homeowners are saying about their dream homes!

Request Information

Do You Currently Rent or Own
I'm a realtor required
Schedule a Tour
By clicking “Submit'” you consent to receiving calls and text messages from Century Communities, our affiliates, marketing partners and sales agents at the phone number provided, including messages sent using an automated system. Century Communities' privacy policy can be found at www.centurycommunities.com/privacy-policy. You understand that by providing your information to us, we will reach out to you via the information you provide us. Standard text message rates apply. Users can opt out of text messages at any time by texting STOP. ©2025 Century Communities, Inc.

 

This site is protected by reCAPTCHA and the Google Privacy Policy and Terms of Service apply.