Lot 09J1 1216 Lavender Way | New Homes for Sale in Georgetown, TX

Est. Completion:
Move-in Ready!
Bristol | Heights at San Gabriel

Single Family Home

Est. Loading... /mo

$419,990

Buy Now Est. Completion:
Move-in Ready!
  • Square Footage

    2,439 sq ft

  • Bedrooms

    5 beds

  • Bathrooms

    3 baths

  • Number of Floors

    2 floors

  • Parking Bays

    2 bays

Heights at San Gabriel
1216 Lavender Way,
Georgetown, TX 78628

phone icon 512-942-2300
watch icon Sales Office Hours

Sales Office Hours

Monday - BY APPOINTMENT ONLY

Tuesday - BY APPOINTMENT ONLY

Wednesday - BY APPOINTMENT ONLY

Thursday - BY APPOINTMENT ONLY

Friday - BY APPOINTMENT ONLY

Saturday - BY APPOINTMENT ONLY

Sunday - BY APPOINTMENT ONLY

Overview

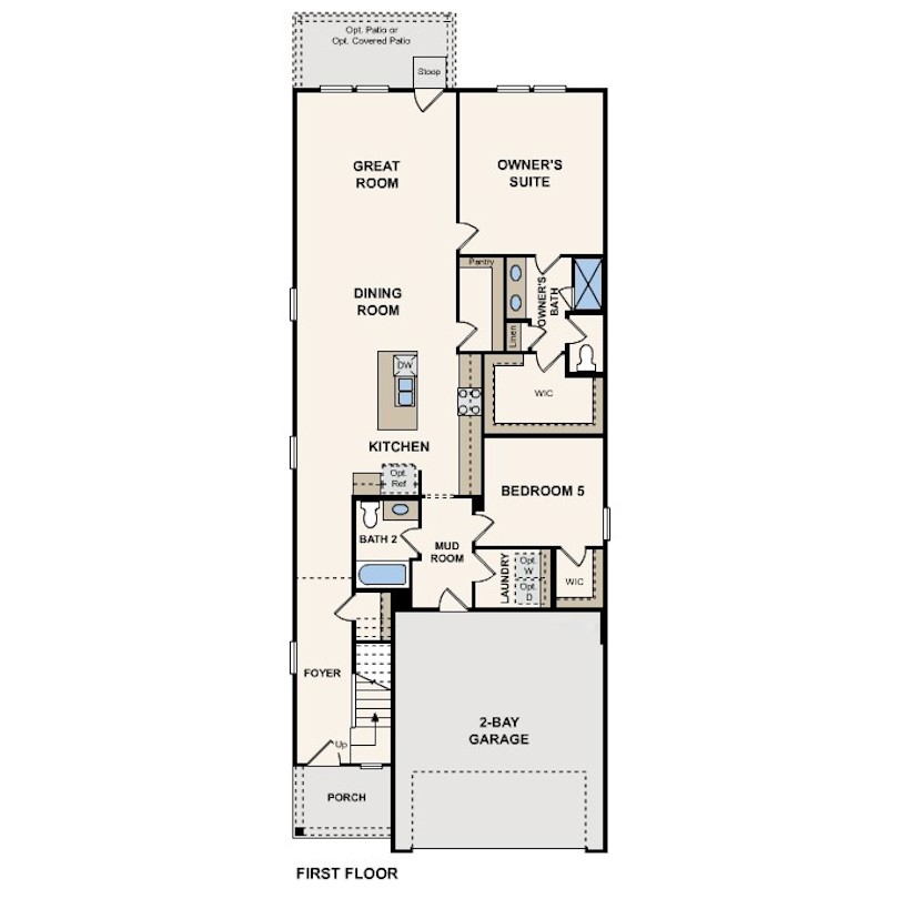
The two-story Bristol plan offers ample space to meet your needs. Privately situated on the main floor, the owner's suite features a roomy walk-in closet and attached bath. Additional main-floor highlights include a second bedroom downstairs with a walk-in closet, a two-story foyer, a mudroom, and a spacious kitchen overlooking an open-concept dining area and great room. Upstairs, you'll enjoy a versatile loft space, plus three more bedrooms—two featuring walk-in closets.

 

*Photos may not be of exact home. Prices, plans, and terms are effective on the date of publication and subject to change without notice. Square footage/dimensions shown is only an estimate and actual square footage/dimensions will differ. Buyer should rely on his or her own evaluation of usable area. Depictions of homes or other features are artist conceptions. Hardscape, landscape, and other items shown may be decorator suggestions that are not included in the purchase price and availability may vary. ©2025 Century Communities, Inc.

Interactive Floor Plan

Enjoy a closer look at what this plan has to offer!

Explore homesites at this community!

Get a feel for the neighborhood and find the right homesite for you.

Community Information

Heights at San Gabriel
Discover new construction homes for sale in Georgetown, TX, at The Heights at San Gabriel! Showcasing single- and two-story floor plans with modern layouts and stylish design, the homes at this community complement any lifestyle. Enjoy a great location near Round Rock and Pflugerville, with proximity to Austin. Exciting community amenities like a pool, clubhouse, park, playground, and sports courts are planned for the future. As one of the top new homebuilders in Georgetown, TX, we’d be thrilled to help you find your dream home here! 

Schools

  • Georgetown ISD
  • Wolf Ranch Elementary School
  • Tippit Middle School
  • East View High School

Shopping and Dining

  • Wolf Ranch Town Center
    Georgetown, TX 78628
  • Urban Cottage
    Georgetown, TX 78628
  • Wolf Lakes H-E-B
    Georgetown, TX 78628
  • Mesquite Creek Outfitters
    Georgetown, TX 78628
  • Target
    Georgetown, TX 78628
  • Walmart
    Georgetown, TX 78628
  • 600 Degrees Pizzeria
    Georgetown, TX 78628
  • Dos Salsas
    Georgetown, TX 78628
  • Hat Creek Burger Company
    Georgetown, TX 78626
  • Goodfolks
    Georgetown, TX 78626
  • 2020 Market Scratch Kitchen & Bar
    Georgetown, TX 78628

Homeowner reviews

See for yourself what our Century Communities homeowners are saying about their dream homes!

Request Information

Do You Currently Rent or Own
I'm a realtor required
Schedule a Tour
By clicking “Submit'” you consent to receiving calls and text messages from Century Communities, our affiliates, marketing partners and sales agents at the phone number provided, including messages sent using an automated system. Century Communities' privacy policy can be found at www.centurycommunities.com/privacy-policy. You understand that by providing your information to us, we will reach out to you via the information you provide us. Standard text message rates apply. Users can opt out of text messages at any time by texting STOP. ©2025 Century Communities, Inc.

 

This site is protected by reCAPTCHA and the Google Privacy Policy and Terms of Service apply.